Từ vị trí “lõi” liên kết với nhiều tuyến giao thông huyết mạch
Tọa lạc vị trí ngay cửa ngõ phía Tây Hà Nội, liền kề với các tuyến đường huyết mạch của thành phố như: tuyến đường sắt Metro số 8, đường Hàm Nghi, đường Phạm Hùng, kết nối với đường vành đai 3 và đường Lê Đức Thọ.... Hoàng Thành Pearl được đánh giá sở hữu vị trí đắc địa, dễ dàng kết với hệ thống giao thông hạ tầng khu vực.

Hoàng Thành Pearl nằm ở vị trí đắc địa, dễ dàng kết nối với các tuyến đường huyết mạch của thành phố
Từ chuỗi tiện ích đẳng cấp vượt trội
Hoàng Thành Pearl là một khu phức hợp liền kề được thiết kế gồm 1 tòa chung cư cao tầng, sảnh “Ngọc trai đa sắc”, khu nhà ở liền kề và công viên nội khu được bố trí tại khu vực trung tâm.
Công viên nội khu “Ngọc Trai tỏa sáng” với diện tích hơn 3000m2 đóng vai trò như “lá phổi xanh” cho toàn dự án, là “tấm lọc” tái tạo không gian sống trong lành để cư dân được tận hưởng cuộc sống yên bình mỗi khi trở về nhà. Công viên được thiết kế theo lối kiến trúc hiện đại với nhiều mảng xanh tươi mát của những bóng cây, vườn hoa, tiểu cảnh.
Bên cạnh đó, tại đây được bố trí ghế nghỉ, máy tập ngoài trời, khu vui chơi, lối massage chân, đường dạo bộ, bãi cỏ dã ngoại, khu BBQ, sân khấu trung tâm… để cả người lớn và trẻ nhỏ có không gian thư giãn, chơi đùa, vun đắp tình thân và gắn kết cộng đồng.
>>XEM THÊM: Điểm tên 3 dự án chung cư cao cấp đang được quan tâm nhất tại khu vực phía Tây Hà Nội
.jpg)
Công viên Ngọc Trai được đánh giá như một "lá phổi xanh" trong lành của dự án
Không thể không kể đến sảnh “Ngọc trai đa sắc” - sảnh lounge sang trọng đón khách. Cùng với đó, tất cả các dịch vụ thương mại đều được tích hợp tại 2 tầng khối đế và 25 căn shophouse trong dự án gồm: siêu thị, nhà hàng, café, Spa & Salon, Gym & Fitness, nhà trẻ…. Mang lại sự tiện nghi vượt trội cho cư dân.
Bên cạnh đó, Chủ đầu tư còn dành nhiều tâm huyết kiến tạo chất lượng sống vượt chuẩn cho cư dân với phòng sinh hoạt cộng đồng, thư viện, an ninh đa lớp 24/7. Đặc biệt, Hoàng Thành Pearl là dự án hiếm hoi giữa Thủ đô đảm bảo mỗi hộ có ít nhất 1 chỗ đỗ ô tô với 3 hầm để xe diện tích hơn 16.000m2.
Đến thiết kế căn hộ hoàn hảo
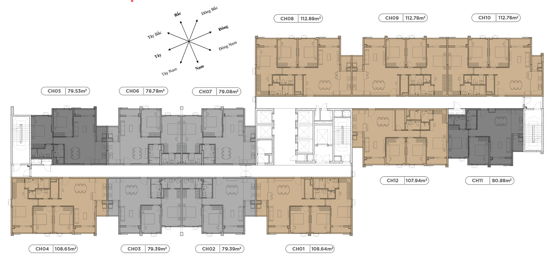
Hoàng Thành Pearl thu hút được sự quan tâm của rất nhiều khách hàng bởi thiết kế căn hộ đẳng cấp hoàn toàn không có góc tối và hướng chính tây. Tất cả các căn hộ đều được thiết kế vuông vắn, mỗi căn đều có 2 ban công và từ 2-3 logia rộng rãi với cửa kính tràn, tận dụng tối đa ánh sáng tự nhiên mang lại cảm giác thư thái, bình yên tại mỗi góc trong căn nhà.
Bên cạnh đó, dự án có mật độ căn hộ thấp, mỗi sàn chỉ có 12 căn hộ nhưng lại được bố trí đến 6 thang máy, giao thông trục đứng cũng trở nên thuận tiện hơn bao giờ hết.
>>XEM THÊM: Mê Linh - Cơ hội đầu tư vào trung tâm giao thương quốc tế hàng đầu Việt Nam

Mật độ căn hộ thấp cùng với thiết kế tối ưu tận dụng tối đa ánh sáng tự nhiên
Để thuận tiện cho cư dân khi nhận nhà và chuyển về ở, chủ đầu tư bàn giao đầy đủ nội thất cao cấp như: cửa chống cháy gỗ công nghiệp, khóa cửa thông minh Kaadas, sàn gỗ công nghiệp dày 12mm, sơn Jotun, điều hòa âm trần và điều hòa hai chiều Daikin, bếp từ, máy hút mùi Hafele, thiết bị vệ sinh Grohe và Bravat, bình nóng lạnh Ariston.
Giá trị đầu tư trong tương lai
Thời điểm hiện tại, tổ hợp căn hộ cao cấp Hoàng Thành Pearl là dự án sơ cấp hiếm hoi tại khu Mỹ Đình đang mở bán trên thị trường. Đây là khu vực có nhu cầu về căn hộ cao cấp khá cao do tập trung nhiều tòa văn phòng hạng A, trụ sở các bộ - ban - ngành, đại sứ quán, sân vận động Mỹ Đình, Trung tâm Hội nghị Quốc gia... Khu vực quanh dự án được cải tạo, xây mới nhiều như cải tạo sông Nhuệ, mở rộng đường Nguyễn Văn Giáp, mở tuyến đường phía sau dự án… sẽ mở ra cho dự án tầm view đẹp mắt. Cùng với đó, nằm trong quy hoạch hạ tầng mới, mở rộng đường của quy hoạch khu Tây Hà Nội, Hoàng Thành Pearl chắc chắn sẽ mang lại giá trị đầu tư lớn cho khách hàng.
Trên đây là những ưu thế vượt trội của dự án Hoàng Thành Pearl – viên ngọc sáng tại khu vực cửa ngõ phía Tây Hà Nội. Hy vọng bài viết có thể cung cấp cho bạn các thông tin hữu ích khi tìm mua dự án chung cư phân khúc cao cấp tại khu vực này.
Hãy theo dõi các bài viết tiếp theo của Nhà Ở Ngay để có thêm những thông tin hữu ích về các dự án khác nhé!
