Hỏi:
Chào Nhà Ở Ngay,
Tôi là nam, sinh năm Quý Sửu 1973, hiện tôi đang chuẩn bị xây nhà mới và muốn xin tư vấn từ Nhà Ở Ngay.
Mảnh đất tôi định xây nhà có chiều rộng 10m, chiều sâu 30m, hướng đất là hướng đông bắc có số độ là 65O. Tôi sẽ không xây hết đất mà sẽ để dành một phần làm sân vườn. Gia đình tôi thống nhất xây nhà 1 tầng, gồm: 1 phòng khách kết hợp phòng thờ, 1 bếp và ăn, 3 phòng ngủ (trong đó có 1 phòng ngủ là dự phòng cho con, trước mắt tôi muốn dùng phòng này làm phòng làm việc). Tuy nhiên, nếu xây nhà theo hướng của lô đất thì phạm vào hướng họa hại, theo 24 sơn hướng lại phạm cung khẩu thiệt. Vì vậy, tôi đang không làm thế nào để xây nhà xoay chéo lấy hướng tốt mà vẫn để được sân trước rộng.
Mong Nhà Ở Ngay tư vấn giúp.
Đáp:
Chào bạn,
Trước tiên, xin cảm ơn bạn đã tin tưởng tư vấn của Nhà Ở Ngay.
Để chọn phương án sắp đặt phong thủy cho nhà của bạn, chúng ta cùng phân tích lần lượt các thế và hướng khác nhau của ngôi nhà.
Về hướng nhà
Thứ nhất, hướng nhà hiện tại là hướng đông bắc 65O. Nếu xây nhà theo hướng này thì về phong thủy bát trạch phạm hướng họa hại và phạm cung khẩu thiệt trong 24 sơn hướng. Do đó, nên xoay sang hướng đông 70O.
Về thiết kế

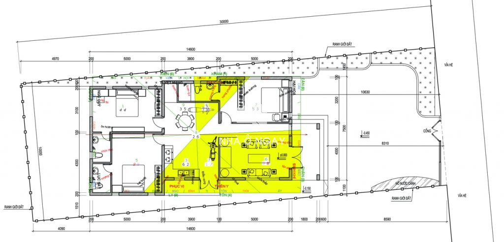
Phương án thiết kế mặt bằng nhà ở

Phương án thiết kế mặt đứng nhà ở
Trong phương án về kiến trúc mặt bằng công năng của căn nhà như trên, xoay hướng cửa đi 5O về phía đông, để được hướng sinh khí theo bát trạch. Về việc lô đất bị chéo và không vuông với ngôi nhà, điều này không bị xấu về phong thủy. Sân vườn chúng ta xây dựng vuông theo nhà, còn lại đất trồng cây ta để chéo. Trong phong thủy nếu là đất không chưa có nhà, thì người ta xem hướng đất, để biết tốt xấu. Khi có nhà trên đất thì sự tốt xấu tính theo ngôi nhà, với mảnh đất lớn dù có hình dạng như thế nào đi chăng nữa và có xây bao nhiêu cái nhà, thì sự tốt xấu theo phong thủy phải tính theo từng thế và hướng của mỗi ngôi nhà.

Mặt bằng nhà ở theo phong thủy đặt trong sơ đồ bát trạch
Với mặt bằng thiết kế trên, cửa chính vừa có vị trí và hướng nằm trong cung sinh khí. Nhưng đó chỉ là theo phong thủy bát trạch, còn trường phái khác thì sao. Theo huyền không phi tinh thì hướng nhà và cửa nằm trong phương vị có bộ sao vận sơn hướng là 6-9-8, nên rất vượng đinh vượng tài. Khi bố trí hồ cảnh ở trước nhà, phải đặt ở phương đông thì sẽ được thế vượng đinh vượng tài. Nhưng nếu đặt ở phương đông bắc sẽ không còn vượng nữa. Với mỗi hướng nhà khác nhau sẽ có phương vị đặt Hồ cá và Bể cảnh khác nhau, chứ không phải cứ cùng hướng đông là đặt bên giống nhau.
Với thiết kế kiến trúc nhà ở như trên, vừa được toàn cục của ngôi nhà tốt theo phong thủy huyền không phi tinh, lại được hướng toàn nhà là sinh khí theo bát trạch, phòng ngủ xoay cửa hướng nhận hướng nam là phục vị làm hướng, giường ngủ quay về hướng đông là hướng sinh khí. Như vậy đã đảm bảo cửa chính, bàn thờ, bếp, giường ngủ, cổng đều được những phương vị tốt theo phong thủy, công năng lại thuận tiện.
Còn về thẩm mỹ của ngôi nhà, có thể xem bản vẽ mặt đứng và phối cảnh dưới đây.

